Nabízíme k prodeji velmi příjemný a udržovaný byt o dispozici 3+1, který se nachází ve 4. patře bytového domu s výtahem v oblíbené a klidné části Praha – Háje.
Byt nabízí praktické a funkční dispoziční řešení vhodné jak pro vlastní rodinné bydlení, tak i jako investici k následnému pronájmu. Velkou výhodou je orientace na dvě světové strany – ložnice a dětský pokoj směřují na sever, zatímco kuchyně, lodžie a obývací pokoj jsou orientovány na jih, což zajišťuje dostatek denního světla v hlavní obytné části bytu.
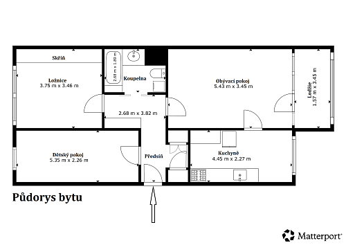
Součástí bytu je prosklená lodžie o výměře 5,5 m², která příjemně rozšiřuje obytný prostor a nabízí možnost celoročního využití. K bytu dále náleží také sklepní kóje o velikosti 1 m².
Byt je částečně v původním stavu, přesto interiér působí velmi příjemným a udržovaným dojmem. Koupelna prošla přestavbou a je vybavena vanou s masážní funkcí, která zvyšuje komfort každodenního užívání. V bytě jsou nové interiérové dveře a celý prostor je čerstvě vymalován, takže je připraven k okamžitému užívání bez nutnosti větších vstupních investic. V původní kuchyni je osazen plynový sporák.
Praktickým benefitem jsou také povrchy podlah – dlažba je v kuchyni, předsíni, chodbě, koupelně i na lodžii, což zajišťuje snadnou údržbu a dlouhou životnost. V ostatních místnostech je původní linoleum, které lze bez problémů vyměnit.
Lokalita nabízí velmi dobrou občanskou vybavenost, kterou ocení zejména rodiny s dětmi. Mateřská škola se nachází přímo před domem, základní škola je vzdálena přibližně 500 metrů a nejbližší zastávkou MHD je Donovalská. V dobré dostupnosti je také stanice metra Háje, která zajišťuje rychlé spojení do dalších částí Prahy.
Byt představuje zajímavou příležitost pro zájemce, kteří hledají příjemné bydlení s lodžií, výtahem a výbornou občanskou vybaveností v zavedené pražské lokalitě.

Nabídková cena nemovitosti:
7.990.000,-Kč
Rezervační depozit:
483.395,-Kč
Disclaimer:
Uvedené výměry jsou orientační. V případě více zájemců bude nemovitost prodána nejlepší nabídce a majitel si vyhrazuje právo vybrat kupujícího na základě jím zvolených kritérií. Veškeré zveřejněné údaje obsažené v tomto inzerátu mají pouze informativní charakter a nejsou nabídkou ve smyslu § 1731 nebo § 1732 občanského zákoníku, ani se nejedná o veřejný příslib dle § 1733 občanského zákoníku.
Michal Kutzendörfer, MRE – realitní makléř a spolumajitel společnosti Reality Brodan & Kutzendörfer Jmenuji se Michal Kutzendörfer a více než 15 let působím na realitním trhu v regionu Beroun, Králův Dvůr a okolí. Jsem spolumajitelem společnosti Reality Brodan & Kutzendörfer, která si díky dlouholetým zkušenostem, individuálnímu přístupu a důrazu na kvalitu služeb vybudovala pevné postavení mezi realitními kancelářemi nejen v Berouně a na Berounsku, ale také v Praze a na Praze-západ. Naši práci oceňují samotní klienti – máme vysoké hodnocení na Google i na Firmy.cz, což je pro nás potvrzením, že jdeme správnou cestou. Za svou kariéru jsem zprostředkoval stovky úspěšných obchodů – od prodeje rodinných domů, bytů a pozemků, až po pronájmy komerčních nemovitostí. Vždy dbám na to, aby každý klient dostal maximální servis, jasné informace a férové podmínky. Moje práce nekončí u podpisu smlouvy. Pomáhám klientům s kompletním právním servisem, financováním i navazujícími službami, které usnadní hladký průběh celé transakce. Díky zkušenostem a znalosti místního trhu dokážu přesně stanovit prodejní cenu nemovitosti, připravit efektivní marketingovou strategii a oslovit správné zájemce. ✔ Spolumajitel Reality Brodan & Kutzendörfer ✔ Makléř roku ERA Reality 2021 ✔ Člen ERA Excellent Club (2020–2024) ✔ Realitka roku 2024 – 1. místo v okrese Beroun ✔ Soutěž Realiták roku 2024 – 2. místo, makléř okres Beroun ✔ Více než 15 let praxe v realitách ✔ MRE - Master of Real Estate , certifikovaný realitní specialista Pokud hledáte spolehlivého partnera pro prodej či pronájem nemovitosti v Berouně a okolí, jsem tu pro vás. Rád vám poskytnu konzultaci a pomůžu najít nejlepší řešení právě pro vaši situaci. ? Kontakt: michal@brodan-kutzendorfer.cz | ? +420 777 985 898